Din snarvei til drømmeboligen
Med en gratis Leietaker-CV får du det lille forspranget du trenger for å lykkes på leiemarkedet.

Inkluderer: a-konto vann, internett, kabel tv
Hei!
Vi har en nesten ny leilighet som vi nå hjelper utleieren med å leie ut, da vi skal flytte til Fredrikstad.
Leiligheten ligger rett ved Ensjø T-banestasjon og har kort vei inn til sentrum.
I nærområdet finnes det matbutikker, kafeer, restauranter, Jordal Amfi ishall, det nye Tøyenbadet osv. Området er veldig rolig og familievennlig.
Vi har trivdes veldig godt her, og utleieren er utrolig hyggelig og lett å forholde seg til :)
Leiligheten er ledig fra ca. 1. juli.
Bygget er nesten helt nytt, og det samme gjelder alle fasiliteter. Det finnes 4 store, felles takterrasser som er fantastiske om sommeren – med mulighet for grilling. Det finnes også felles oppbevaringsplasser for sykler, barnevogner osv.
I bygget er det et “sykkelverksted” og et selskapslokale som kan leies.
Leiligheten har to boder – en mindre i leiligheten og en større i kjelleren.
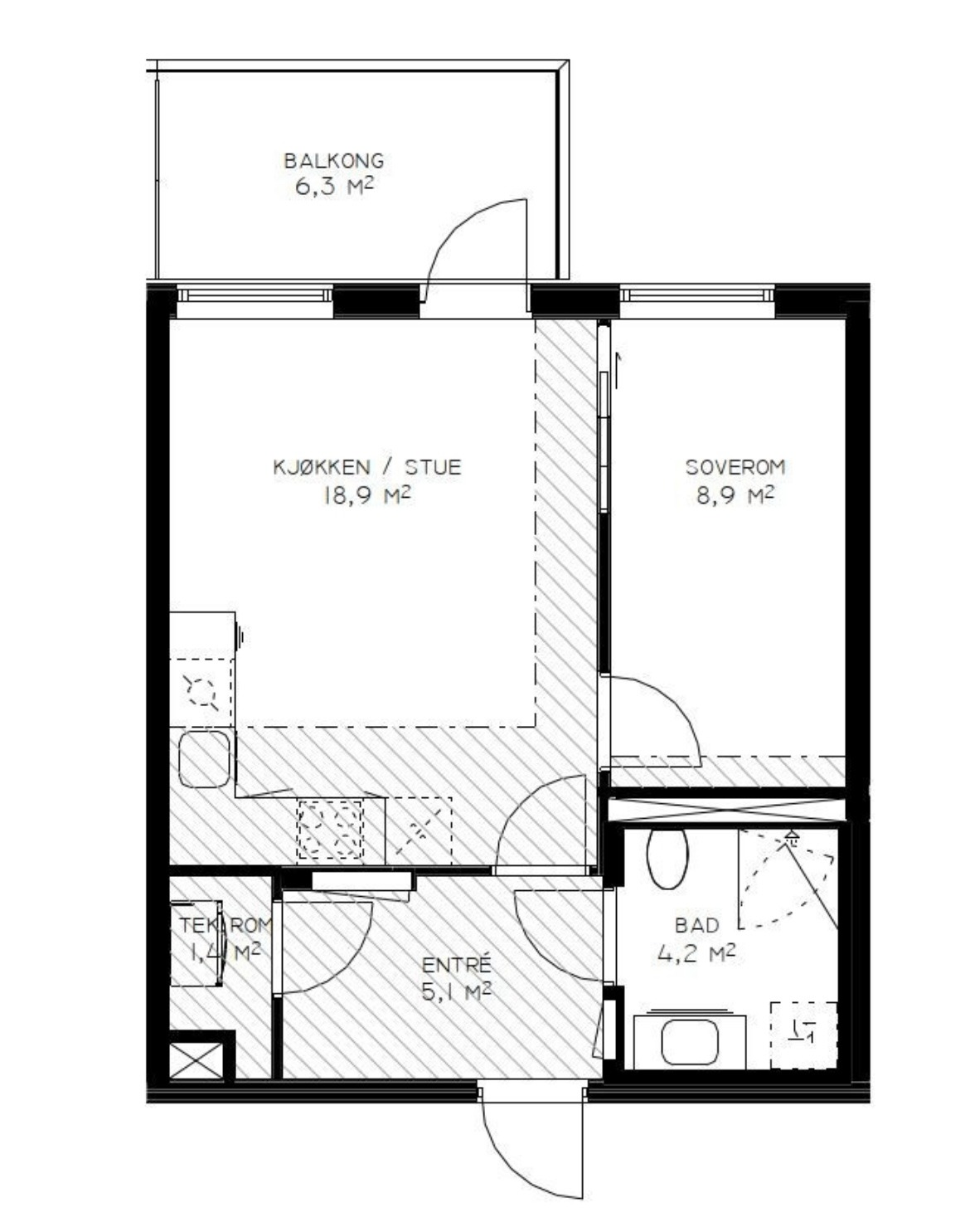
Leiligheten er 41 kvm pluss en stor, fin balkong med ettermiddagssol.
Noen møbler følger med: vaskemaskin + tørketrommel, oppvaskmaskin, integrert kjøleskap, integrert stekeovn + platetopp, TV-benk, garderobeskap i gangen og garderobeskap på soverommet.
Det ønskes rolige og stabile personer med stabil økonomi.
Husleien er 17 600 kr i måneden. Dette inkluderer a-konto vann, internett og TV.
Strømforbruket er svært lavt – vi har betalt ca. 300 kr i måneden.
Ved interesse, send informasjon om deg/dere, og gjerne referanser hvis dere har.
Hilsen,
Emma
Med en gratis Leietaker-CV får du det lille forspranget du trenger for å lykkes på leiemarkedet.
Med en gratis Leietaker-CV får du det lille forspranget du trenger for å lykkes på leiemarkedet.