Vi tilbyr depositumsgaranti til kun 600 kr / mnd for denne leieboligen
- Erstatter behovet for en vanlig depositumskonto
- Fast lavt månedsbeløp
- Enkelt å opprette og avslutte




Inkluderer: Strøm, TV (Altibox), internett (fiber)
Vi er en barnefamilie som søker 3 rolige studenter som vil bli nye leietakere i kjeller-/sokkeletasjen vår. Boform er som et kollektiv, men ønsker primært en stabil vennegjeng som vil leie hele leiligheten samlet.
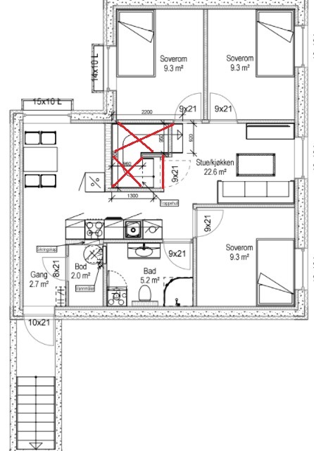
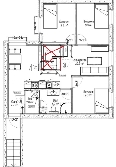
Leiligheten ligger i en enebolig (nyoppført 2020) i et rolig nabolag. Leiligheten har egen inngang og en liten innvendig bod. De tre soverommene er litt over 9 kvm hver. Leilighet har store vinduer som slipper inn godt med lys. Utformingen er praktisk med tv-stue og spisestue som er adskilt av et kjøkken i midten (se plantegning). Leiligheten er utstyrt med varmekabler i alle gulv og balansert ventilasjon.
Boligen er møblert med det meste man skulle ha behov for, både hvitevarer (inkl oppvaskmaskin, vaskemaskin og tørketrommel) og møblement (seng på 2 av 3 soverom, sofa, tv, spiseseksjon m.m.), samt noe utstyr (kopper, fat, bestikk, støvsuger m.m.).
Badestrand (Korsvika) og turområde (Ladestien) ligger rett nedenfor huset. Det tar fem minutter å gå til Ladetorget (Rema 1000, apotek m.m.). Det er gangavstand til Dronning Mauds Minne Høgskole.
Buss nummer 20 passerer ved bussholdeplass som ligger like ved utkjørsel fra tomten. Med dagens rutetrase er BI (Brattøra holdeplass), Medisinsk fakultet (Studentersamfundet holdeplass) og Gløshaugen lett tilgjengelig med buss. Buss nummer 2 ("metrobussen") passerer ved Lade Gård, som er 3-4 minutter gangavstand fra huset.
Ønsker ikke husdyr eller røyk. Vi tilbyr dessverre ikke hage eller parkering. Sistnevnte kan tilbys i korte perioder etter nærmere avtale.
Husleien på 19950kr/måned (6650kr per rom) inkluderer strøm, TV (Altibox), fiberbredbånd (NTE). Depositumet, som må være på plass innen overtakelsen av boligen, er kr 60000 (kr 20000 per rom).
Bilder er snart 4 år gamle.
Visning etter avtale
Utleier vil forvalte leieforholdet på Husleie.no. For leietaker betyr dette i all hovedsak at husleien faktures og innkreves av Husleie.no
For partenes trygghet vil utleier benytte Husleie.no sin leiekontrakt. Begge parter signerer kontrakten med BankID.
Depositumet skal innbetales til depositumskonto i Instabank opprettet av utleier på Husleie.no
Leietaker kan stille depositum i form av depositumsgaranti. Depositumsgaranti, også kjent som leiegaranti, er et alternativ til ordinært depositum ved leie av bolig. Du betaler kun en lav månedsum for å ha gyldig depositum.
Utleier kan velge å kredittsjekke potensielle leietakere på Husleie.no. Det vil da bli stilt krav om inntekt og null betalingsanmerkninger.
Interessenter til boligen oppfordres til å fremlegge leietakerbevis. Dette kan kjøpes på Husleie.no for kr 49.
Med en gratis Leietaker-CV får du det lille forspranget du trenger for å lykkes på leiemarkedet.