Din snarvei til drømmeboligen
Med en gratis Leietaker-CV får du det lille forspranget du trenger for å lykkes på leiemarkedet.




Inkluderer: Bredbånd og strøm
Meld interesse via annonsen :)
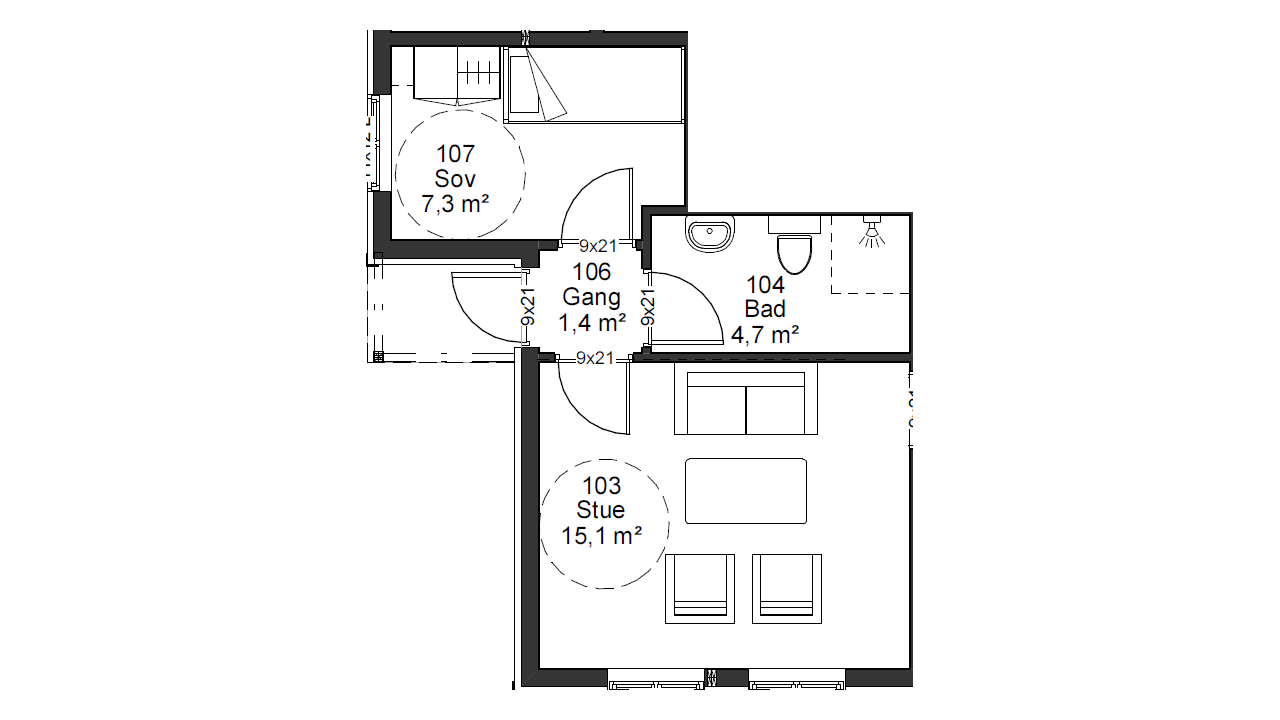
Lys og moderne hybel på 28 m² i Granåsen, Fetsund – ledig fra august 2025
Hybel til leie i enebolig oppført i 2021, beliggende i et nytt og rolig boligfelt i Granåsen, Fetsund. Leieforholdet kan starte fra august 2025 eller etter nærmere avtale.
Hyblen har egen inngang og disponerer en liten, privat hageflekk.
Innhold:
Åpen stue/kjøkkenløsning med sofa, kombiskap (kjøl/frys), oppvaskmaskin, stekeovn med induksjonstopp, airfryer og kaffemaskin.
Separat soverom med seng, klesskap og skrivebord
Bad med flislagt gulv med varmekabler og vaskemaskin
Praktisk informasjon:
A konto vann: kr 200 per måned (gjøres opp årlig)
Bussholdeplass i gangavstand (5 minutter)
Dagligvarebutikk i gangavstand (10 minutter)
Kun 10 minutter med bil til Lillestrøm sentrum
Nærområdet byr på flotte turområder og flere badeplasser
Ønsket leietaker:
Vi ser etter en rolig og ordensbevisst person med stabil økonomi. Røyking og dyrehold er ikke tillatt. Utleier er en småbarnsfamilie, så noe barnestøy må påregnes.
Søknad:
Send en kort presentasjon av deg selv via annonsen – fortell gjerne hvem du er, hva du jobber med eller studerer, og ønsket leieperiode.
Visning etter avtale. Kontakt må skje via «Meld interesse her» i annonsen.
Utleier vil forvalte leieforholdet på Husleie.no. For leietaker betyr dette i all hovedsak at husleien faktures og innkreves av Husleie.no
For partenes trygghet vil utleier benytte Husleie.no sin leiekontrakt. Begge parter signerer kontrakten med BankID.
Depositumet skal innbetales til depositumskonto i Instabank opprettet av utleier på Husleie.no
Utleier kan velge å kredittsjekke potensielle leietakere på Husleie.no. Det vil da bli stilt krav om inntekt og null betalingsanmerkninger.
Med en gratis Leietaker-CV får du det lille forspranget du trenger for å lykkes på leiemarkedet.
Med en gratis Leietaker-CV får du det lille forspranget du trenger for å lykkes på leiemarkedet.