Vi tilbyr depositumsgaranti til kun 420 kr / mnd for denne leieboligen
- Erstatter behovet for en vanlig depositumskonto
- Fast lavt månedsbeløp
- Enkelt å opprette og avslutte




Inkluderer: Strøm og internett
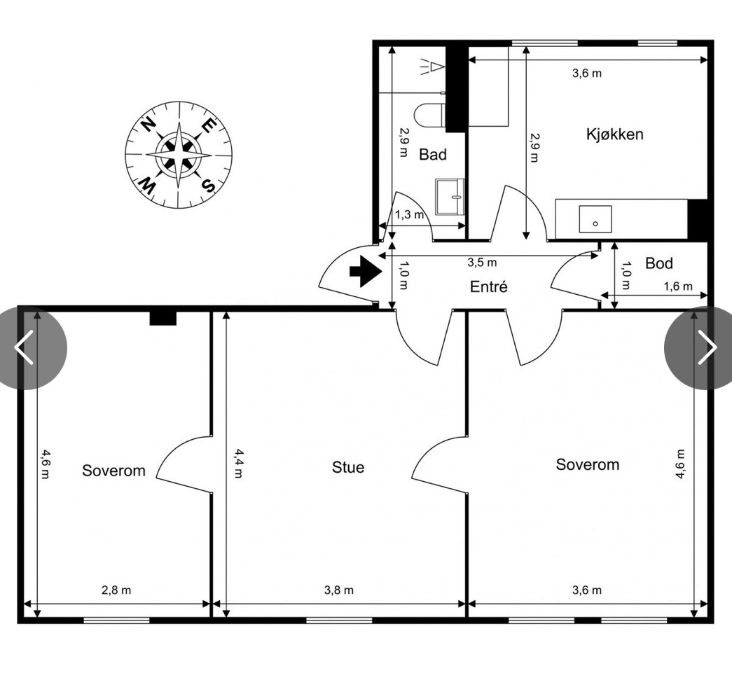
Jeg leier ut det ene soverommet i leiligheten min midt i Oslo sentrum på totalt 70m2. Jeg kjøpte leiligheten i fjor sommer og har pusset opp. Alle rom utenom badet er totalrenovert i 2024/2025.
Leiligheten er romslig og ligger rett ved Torggata, ca. 10 min å gå fra Oslo S og Karl Johan. Selv om leiligheten er sentral er det relativt lite støy, da vinduene er nye og leiligheten ligger i 3. etasje.
Leiligheten er fullt møblert (utenom soverommet som leies ut) og har alt man trenger, da jeg har bodd her et år allerede og leid ut til en venninne. Soverommet er på ca. 13 kvadrat, og umøblert. Strøm er inkludert i leien.
Jeg ser etter noen med fast inntekt i 20-30 årene, som er ryddig, omgjengelig og tar godt vare på leiligheten. Jeg vil gjerne ta en prat/møtes før leieforholdet startes for å se om vi passer sammen som roomies:)
Jeg ser for meg en kontrakt med 3 måneders oppsigelsestid. Ta kontakt for visning.
Jeg kan være fleksibel med innflyttingsdato.
For partenes trygghet vil utleier benytte Husleie.no sin leiekontrakt. Begge parter signerer kontrakten med BankID.
Leietaker kan stille depositum i form av depositumsgaranti. Depositumsgaranti, også kjent som leiegaranti, er et alternativ til ordinært depositum ved leie av bolig. Du betaler kun en lav månedsum for å ha gyldig depositum.
Med en gratis Leietaker-CV får du det lille forspranget du trenger for å lykkes på leiemarkedet.