Vi tilbyr depositumsgaranti til kun 540 kr / mnd for denne leieboligen
- Erstatter behovet for en vanlig depositumskonto
- Fast lavt månedsbeløp
- Enkelt å opprette og avslutte




Inkluderer: Bredbånd
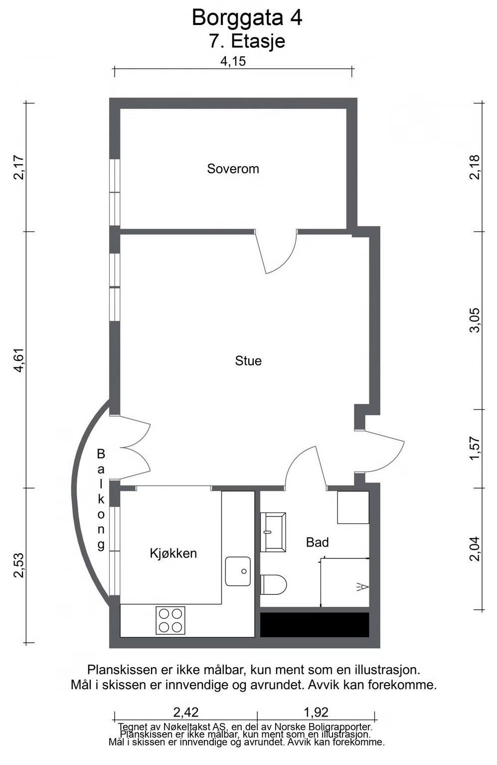
Flott og lys 2-roms leilighet på ca. 41 m² i 7. etasje, med balkong og god utsikt. Leiligheten har en god planløsning med romslig stue med utgang til fransk balkong, separat soverom, pent bad og praktisk kjøkken. Store vindusflater gir rikelig med naturlig lys og en luftig atmosfære.
Kort om leiligheten:
- Ca. 41 m²
- 7 etasje med heis
- Balkong med god utsikt og fine solforhold
- Separat soverom
- Romslig stue med store vindusflater
- Pent bad og funksjonelt kjøkken
Leies ut umøblert
Oppgitt pris gjelder umøblert leie
Mulighet for møblering etter avtale mot tillegg i leien
Bygg og fasiliteter:
- Heis
- Felles takterrasse
- Vaktmesterordning
- Rolig og veldrevet borettslag
Beliggenhet:
- Sentralt på Enerhaugen / Tøyen
- Kort gangavstand til dagligvarebutikker, kafeer og servicetilbud
- Nær grønne områder
- Meget gode kollektivforbindelser (T-bane og buss i nærheten)
Øvrig informasjon:
- Langtidsleie foretrekkes
- Ikke tillatt med røyking
- Ledig fra 20.Jan.2026
Ta kontakt for å avtale Visning.
Utleier vil forvalte leieforholdet på Husleie.no. For leietaker betyr dette i all hovedsak at husleien faktures og innkreves av Husleie.no
For partenes trygghet vil utleier benytte Husleie.no sin leiekontrakt. Begge parter signerer kontrakten med BankID.
Depositumet skal innbetales til depositumskonto i Instabank opprettet av utleier på Husleie.no
Leietaker kan stille depositum i form av depositumsgaranti. Depositumsgaranti, også kjent som leiegaranti, er et alternativ til ordinært depositum ved leie av bolig. Du betaler kun en lav månedsum for å ha gyldig depositum.
Utleier kan velge å kredittsjekke potensielle leietakere på Husleie.no. Det vil da bli stilt krav om inntekt og null betalingsanmerkninger.
Interessenter til boligen vil bli oppfordret til å opprette en gratis Leietaker-CV på Husleie.no. Dette gir deg som utleier mer informasjon om interessenten slik at prosessen med å velge ut leietaker blir raskere og enklere.
Felles visning men også ta kontakt for avtale time
Med en gratis Leietaker-CV får du det lille forspranget du trenger for å lykkes på leiemarkedet.