Vi tilbyr depositumsgaranti til kun 270 kr / mnd for denne leieboligen
- Erstatter behovet for en vanlig depositumskonto
- Fast lavt månedsbeløp
- Enkelt å opprette og avslutte




Inkluderer: Oppvarming, varmtvann, internett
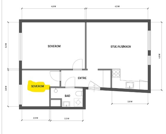
Et rom i bofellesskap i leilighet på 56 kvm på Knut Alvssons Vei 33 i Oslo leies ut fra desember. Boligen er delvis møblert - d.v.s alle rom er møblert utenom det ledige soverommet. Rom i bofellesskapen leies ut for 9 000 kr per måned. Husleien inkluderer oppvarming, varmtvann, internett. Depositumet, som må være på plass innen overtakelsen av boligen, er 27 000 kr.
Strømregning deles mellom oss.
- Høy 1. etasje - skjermet og rolig
- Kjøkken ca. 2017 med integrerte hvitevarer
- Påkostet bad pusset opp i 2022
- Store vindusflater og behagelig lysinnslipp
- Romslig kjellerbod ca. 6 m² (deles på to pers)
- Fyring og varmtvann inkl. i leie
- Sentral beliggenhet nær trikk og buss
Selv eier jeg og bor i leilighetens andre soverom. Jeg er 30 år, økonom, og jobber i Oslo. Ellers er en aktiv person som stort sett er enten på jobb eller trening i hverdagen. Jeg liker å holde leiligheten ryddig og rent, og vil forvente det samme av deg.
Skriv gjerne litt om deg selv, så kan vi avtale visningstidspunkt.
Jeg er på jobbreise frem til 29. nov, men kan ta visning f.o.m. denne dagen.
Utleier vil forvalte leieforholdet på Husleie.no. For leietaker betyr dette i all hovedsak at husleien faktures og innkreves av Husleie.no
For partenes trygghet vil utleier benytte Husleie.no sin leiekontrakt. Begge parter signerer kontrakten med BankID.
Depositumet skal innbetales til depositumskonto i Instabank opprettet av utleier på Husleie.no
Leietaker kan stille depositum i form av depositumsgaranti. Depositumsgaranti, også kjent som leiegaranti, er et alternativ til ordinært depositum ved leie av bolig. Du betaler kun en lav månedsum for å ha gyldig depositum.
Utleier kan velge å kredittsjekke potensielle leietakere på Husleie.no. Det vil da bli stilt krav om inntekt og null betalingsanmerkninger.
Med en gratis Leietaker-CV får du det lille forspranget du trenger for å lykkes på leiemarkedet.