Vi tilbyr depositumsgaranti til kun 249 kr / mnd for denne leieboligen
- Erstatter behovet for en vanlig depositumskonto
- Fast lavt månedsbeløp
- Enkelt å opprette og avslutte




Inkluderer: Leiligheten leveres med - Strøm - Wifi/bredbånd - Husforsikring (bygning) - Kommunale avgifter (vann, renovasjon og avløpsavgifter)
Rom i bofelleskap i romslig leilighet over to plan (+ kjeller) med 3 soverom – supersentralt på Eiktoppen!
- Soverom 1, 1. etasje (10,8 m2): 8700
- Soverom 2, 2. etasje (7,6 m2): 8500 (med utgang til balkong)
- Soverom 3, 2. etasje (6,7 m2): 8300
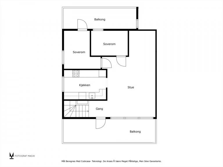
Leiligheten kan tilpasses både i forhold til møblering og tilleggstjenester. Leiligheten er lys og innbydende og går over to plan. Leiligheten er del av en tomannsbolig og passer perfekt for deg som ønsker god plass og en svært praktisk beliggenhet. Med sine tre balkong/ytterdører og store vindusflater fremstår leiligheten lys og tiltalende.
Innvendig
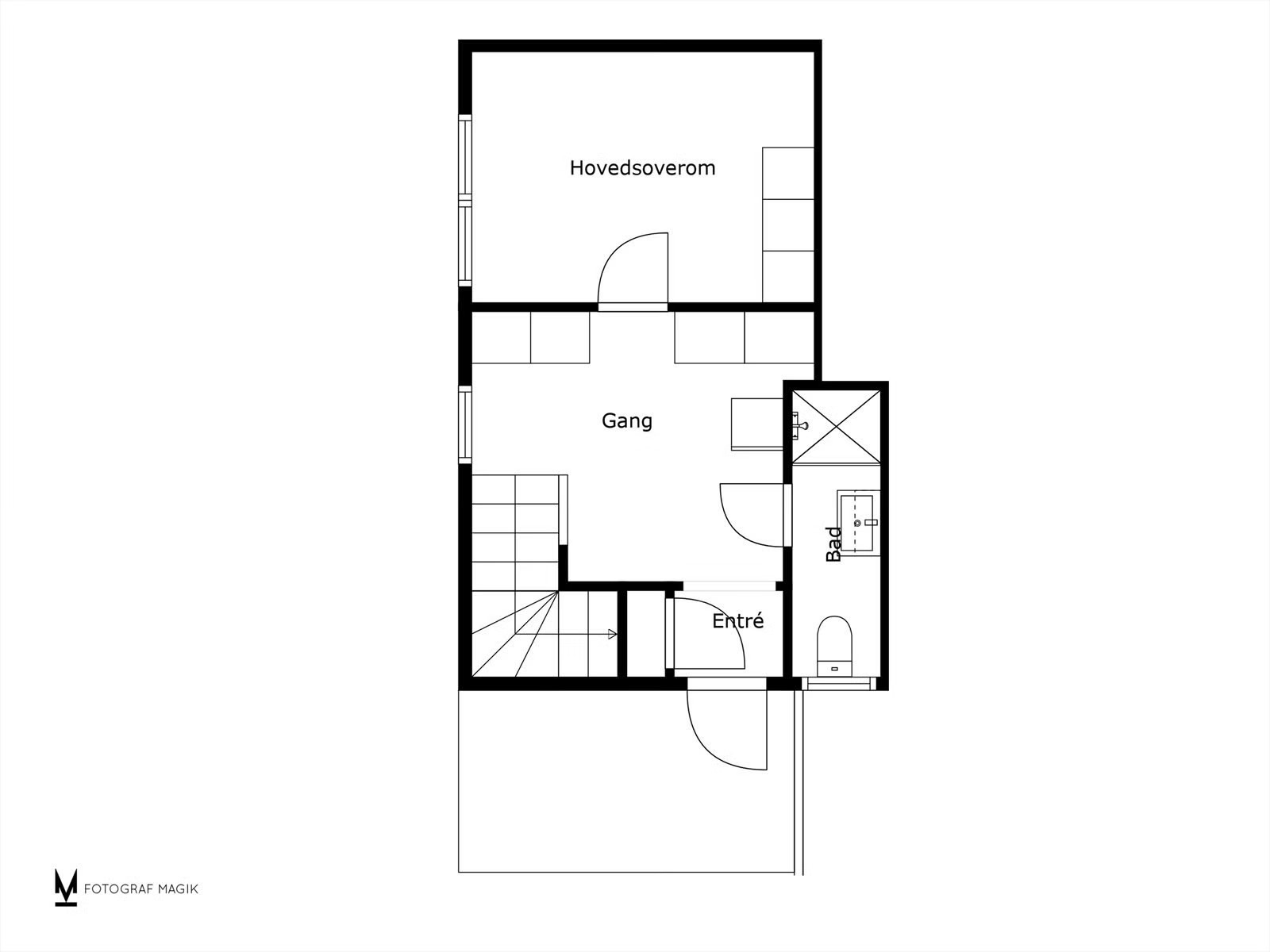
Leiligheten har en romslig stue med utgang til en sydvendt og solrik balkong, samt et separat kjøkken med gode arbeidsflater. Leiligheten inneholder tre soverom (ett i 1. etasje og to i 2. etasje), hvorav et av soverommene har utgang til egen privat balkong. Baderommet gjennomgikk noe modernisering i 2021. Entréen inneholder en praktisk garderobeløsning som sørger for god oppbevaring av klær og utstyr. Kjelleren på 13 m² er super til lagring og kan etter avtale også innredes med hobbybenk, hyller el.
Kjeller
Bod 13,2m²
1etg
Soverom - 10,8m², Gang med trapp - 9,2m², Bad - 2,9m², Vindfang - 1,4m
2etg
Stue - 25,4m², Soverom - 7,6m², Soverom - 6,7m², Kjøkken - 9,2m², Gang med trapp - 4,5m
Inventar
Leiligheten leveres med
- Stekeovn
- Ventilator
- Oppvaskmaskin
- Kjøleskap
- Vaskemaskin
Sikkerhet og rømingsveier
Det finnes to brannslukkere og 5 seriekoblede, optiske røykvarslere i leiligheten.
Alle rom er godkjent for varig opphold og alle soverom har tilfredsstillende rømningsveier (både dør og vindu).
Uteområde og parkering
Boligen har to balkonger, hvorav den ene har utgang fra stuen og den andre fra et av soverommene. I tillegg finnes en egen platting på bakkeplan v/inngangsdør som disponeres av leiligheten. Leiligheten disponerer egen privat parkeringsplass for 2–3 biler.
Beliggenhet og nærområde
Leiligheten ligger stille og tilbaketrukket på Eik, kun få meter fra Eiktoppen med dagligvarebutikker, frisør, apotek og café. Det er kort vei til skoler, barnehager, treningssenter, idrettshaller og andre servicetilbud. Universitetet i Sørøst-Norge (USN) ligger en kort kjøretur unna (11 km). Det er sykkelavstand til Sykehuset i Vestfold, SIV (2,9 km) og til Tønsberg sentrum (2,9 km). Området har et svært godt kollektivtilbud med busstopp kun få meter unna m/avganger i retning Tønsberg hvert 10. minutt (reisetid 9 min). Det er gode muligheter for fritidsaktiviteter i umiddelbar nærhet samt turer i lysløypene på Eik og skøyter i Tønsberg ishall/på Maier arena.
Adkomst
Se kart for nøyaktig beliggenhet og adkomst.
Eierforhold – eierseksjon
Leiligheten er en del av en eierseksjon i en tomannsbolig.
Inkludert
- Strøm
- Wifi/bredbånd
- Husforsikring (bygning)
- Kommunale avgifter (vann, renovasjon og avløpsavgifter)
Muligheter for tilpasninger
Leiligheten kan vurderes tilpasset etter avtale, som for eksempel installering av elbilader, innvendig/utvendig møblering (sofa, seng, grill, sykkel el.).
Ta kontakt på telefon eller melding så ser vi nærmere på dine behov.
Oppvarming
Hovedsakelig elektrisk oppvarming.
Leiepris og kontrakt
Oppgitt (månedlig) leiepris er per soverom (se spesifisert pris per soverom lenger opp). Andre eventuelle tilleggstjenester som renhold, snømåking og alarmtjenester vil påvirke prisen.
Utleiers krav til sikkerhet
Depositum er tre månedsleier, eventuelt så kan depositumsgaranti gjennom Tryg Forsikring vurderes. Referanse -og kredittsjekk er del av utleieprosessen.
Annet
- Leiligheten er røykfri
- Husdyr er dessverre ikke tillatt
- Bildene er ment som illustrasjonsbilder – møbler og annet inventar kan avvike
- Leietaker må tegne innboforsikring
- Leietakere må signere på husordensregle
Leietaker kan stille depositum i form av depositumsgaranti. Depositumsgaranti, også kjent som leiegaranti, er et alternativ til ordinært depositum ved leie av bolig. Du betaler kun en lav månedsum for å ha gyldig depositum.
Utleier kan velge å kredittsjekke potensielle leietakere på Husleie.no. Det vil da bli stilt krav om inntekt og null betalingsanmerkninger.
Med en gratis Leietaker-CV får du det lille forspranget du trenger for å lykkes på leiemarkedet.