Din snarvei til drømmeboligen
Med en gratis Leietaker-CV får du det lille forspranget du trenger for å lykkes på leiemarkedet.




Inkluderer: TV/bredbånd, kommunale avgifter
Leies ut i perioden 1. januar 2026 – 31. august 2026.
Lys og moderne bolig i et attraktivt område leies ut på korttidskontrakt. Boligen er solgt, men overtas først av ny eier 1. september 2026 – derfor perfekt for deg som trenger et midlertidig, men komfortabelt sted å bo.
Boligen byr på en praktisk og god planløsning, delikate overflater og gjennomtenkte løsninger. Her bor man i rolige omgivelser med nærhet til skoler, barnehager, kollektivtransport og fine turområder.
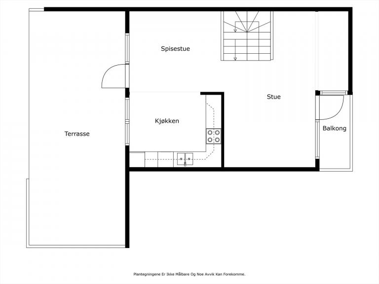
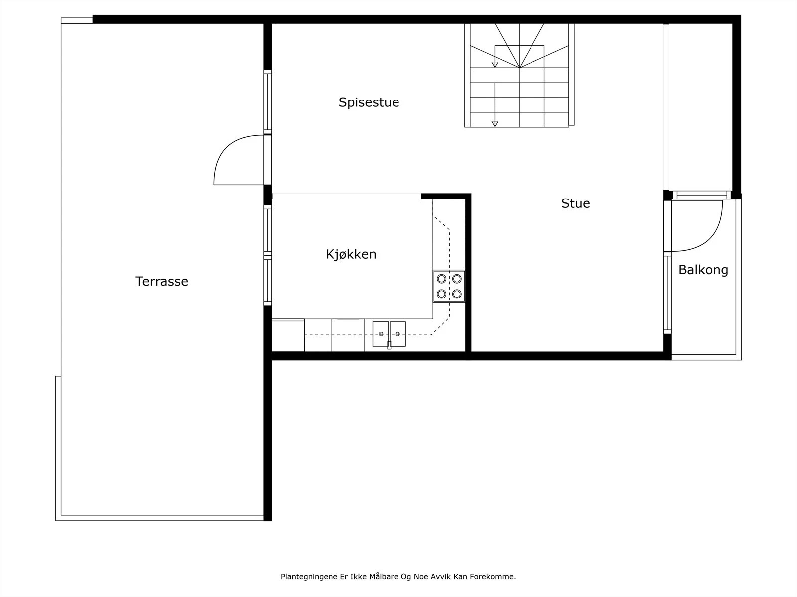
Boligen har følgende rom:
3 soverom
2 bad
Åpen kjøkkenløsning med rikelig av benkeplass
Stue med god romfølelse
Boder som tilbyr greit med lagringsplass
Dette følger med:
TV og internett inkludert
Hvitevarer
Gode oppbevaringsmuligheter
Parkeringsmuligheter og mulighet for lading av elbil
Leieperiode: 1.1.2026–31.8.2026
Oppsigelsestid: 3 måneder for begge parter
Depositum: 36 000kr
Leiepris: 12 000kr pr.mnd
Passer for deg som trenger et fleksibelt leieforhold i en begrenset periode. Ta kontakt for visning eller spørsmål!
Utleier vil forvalte leieforholdet på Husleie.no. For leietaker betyr dette i all hovedsak at husleien faktures og innkreves av Husleie.no
For partenes trygghet vil utleier benytte Husleie.no sin leiekontrakt. Begge parter signerer kontrakten med BankID.
Depositumet skal innbetales til depositumskonto i Instabank opprettet av utleier på Husleie.no
Utleier kan velge å kredittsjekke potensielle leietakere på Husleie.no. Det vil da bli stilt krav om inntekt og null betalingsanmerkninger.
Interessenter til boligen vil bli oppfordret til å opprette en gratis Leietaker-CV på Husleie.no. Dette gir deg som utleier mer informasjon om interessenten slik at prosessen med å velge ut leietaker blir raskere og enklere.
Med en gratis Leietaker-CV får du det lille forspranget du trenger for å lykkes på leiemarkedet.
Med en gratis Leietaker-CV får du det lille forspranget du trenger for å lykkes på leiemarkedet.