Din snarvei til drømmeboligen
Med en gratis Leietaker-CV får du det lille forspranget du trenger for å lykkes på leiemarkedet.




Inkluderer: Tilgang til Carport, TV og internett.
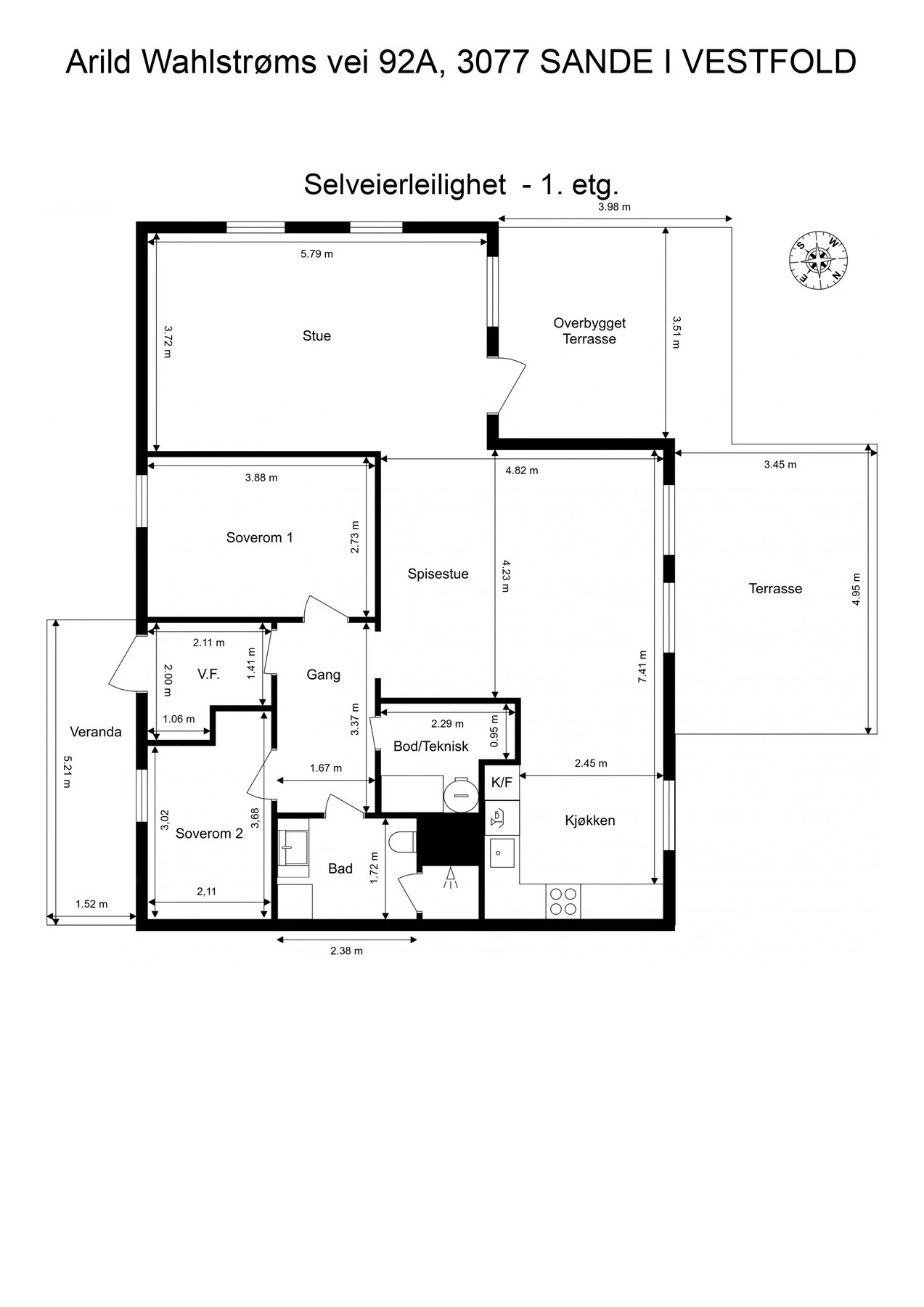
Denne tiltalende leiligheten på 99 kvm kombinerer god planløsning, gjennomgående komfort og ikke minst svært attraktive uteplasser. Her får du et hjem som umiddelbart gir en god følelse - fra det praktiske vindfanget og den ryddige gangen, til den åpne sonen mellom kjøkken og spisestue.
Kjøkkenet har profilerte fronter, heltre benkeplater og gode arbeidsflater, mens stuen fremstår lys og romslig med store vindusflater og flere innredningsmuligheter. Leiligheten har både en veranda og en delvis overbygd terrassen som utgjør til sammen hele 39 kvm.
Leiligheten tilbyr to gode soverom, et delikat flislagt bad med moderne detaljer samt opplegg for vaskemaskin. Vannbåren gulvvarme og laminat gir en lun og behagelig boligopplevelse året rundt.
Nordre Jarlsberg Brygge er et populært, sjønært og nyere nabolag som har umiddelbar nærhet til flotte turområder, sjøen med båthavn og badeplasser, en populær og hyggelig Bistro, samt nærhet til både barnehage, skole, dagligvare og bussholdeplass.
Leies ut fra 01.04.2026. Boligen er umøblert.
Leiligheten leies ut for 14 900,00 kr per måned, inkludert tilgang til fast carport, TV og internett.
Depositumet, som må være på plass innen overtakelsen av boligen, er 44 700,00 kr.
Er du interessert, så send en skriftlig søknad til awv92a@lerskallen.no hvor du beskriver beboerne som skal bo i leiligheten og husk å oppgi kontakt informasjon til referanser. Aktuelle kandidater vil bli kontaktet for nærmere avtale.
Utleier vil forvalte leieforholdet på Husleie.no. For leietaker betyr dette i all hovedsak at husleien faktures og innkreves av Husleie.no
For partenes trygghet vil utleier benytte Husleie.no sin leiekontrakt. Begge parter signerer kontrakten med BankID.
Depositumet skal innbetales til depositumskonto i Instabank opprettet av utleier på Husleie.no
Utleier kan velge å kredittsjekke potensielle leietakere på Husleie.no. Det vil da bli stilt krav om inntekt og null betalingsanmerkninger.
Interessenter til boligen vil bli oppfordret til å opprette en gratis Leietaker-CV på Husleie.no. Dette gir deg som utleier mer informasjon om interessenten slik at prosessen med å velge ut leietaker blir raskere og enklere.
Med en gratis Leietaker-CV får du det lille forspranget du trenger for å lykkes på leiemarkedet.
Med en gratis Leietaker-CV får du det lille forspranget du trenger for å lykkes på leiemarkedet.