Din snarvei til drømmeboligen
Med en gratis Leietaker-CV får du det lille forspranget du trenger for å lykkes på leiemarkedet.




Inkluderer: Grunnpakke internett 1000/1000 Mbps + to ganger filterbytting i året.
Velkommen til en lekker og moderne 2-roms leilighet i populære Tigergården, med attraktiv beliggenhet på Ensjø Torg!
Leiligheten holder gjennomgående høy standard og ligger i byggets 3. etasje med heisadkomst. Den har en arealeffektiv planløsning, åpen stue- og kjøkkenløsning, stor privat balkong, delikat baderom, romslig soverom og praktisk entré med skyvedørsgarderobe. Leiligheten er utstyrt med videodørtelefon-system, balansert ventilasjon med varmegjenvinning samt vannbåren gulvvarme i entré, stue/kjøkken og bad.
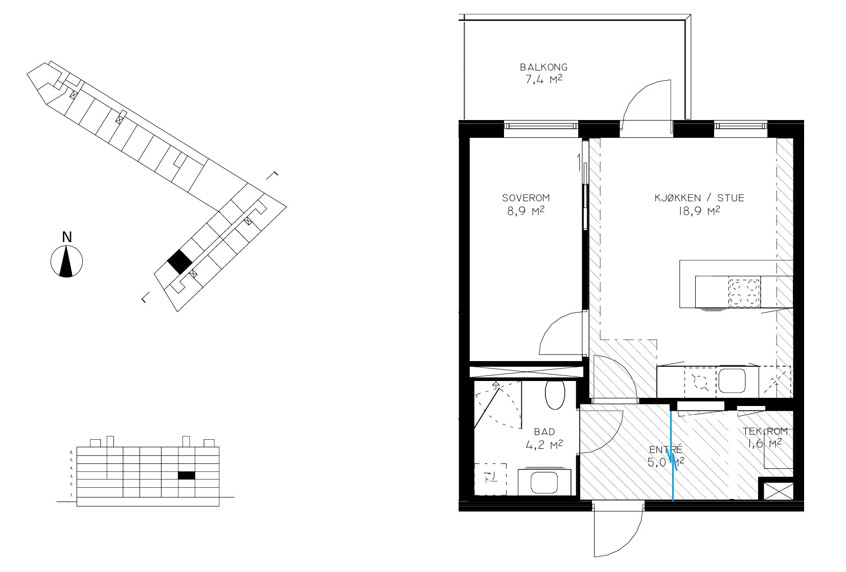
Entré
Lys og innbydende entré med speil langs høyre side. Den innvendige boden er gjort om til en praktisk garderobeløsning med speilskyvedører. God plass til yttertøy og lagring av ski, støvsuger m.m.
Stue
Romslig stue med gode møbleringsmuligheter for sofa, TV-benk og annet inventar. Store vindusflater gir rikelig naturlig lys. 1-stavs eikeparkett på gulv. Fra stuen er det utgang til en stor og solrik balkong med plass til både grill og utemøbler.
Kjøkken
Stilrent HTH-kjøkken med kjøkkenøy – et sosialt samlingspunkt i hjemmet. Integrerte hvitevarer fra AEG, Siemens og Samsung: stekeovn, induksjonstopp med integrert ventilator, mikrobølgeovn, oppvaskmaskin og kjøl/frys. Laminat benkeplate med belysning under overskap. God skap- og benkeplass. Kildesortering etter BREEAM-standard med 4 fraksjoner.
Soverom
Romslig soverom med plass til dobbeltseng, nattbord, skrivepult og garderobeskap. 1-stavs lys eikeparkett.
Bad
Tidløst, flislagt bad med gulvvarme og dimbare downlights. Vegghengt toalett med softclose, heldekkende servant og speil. Vaskemaskin og tørketrommel er inkludert.
Delvis møblert
Leiligheten leies ut delvis møblert og inkluderer vaskemaskin, tørketrommel, garderobeskap med speilskyvedører og tre Bombo-barstoler.
Beliggenhet
Ensjø er et populært og sentralt område i utvikling, med nye boliger, grønne lunger og gode møteplasser. Her bor du med kort vei til skoler, barnehager og flere T-banelinjer. SPAR, SATS og Åpent Bakeri ligger i umiddelbar nærhet.
Kampen med hyggelige kafeer ligger kun få minutter unna. Gang- og sykkelvei går gjennom grønne områder helt til Karihaugen. Tidemannsparken – med lekeplass, bekk, sitteplasser og serveringssteder – ligger rett i nærheten.
Flotte rekreasjonsområder som Kampen park, Botanisk hage og Tøyenparken ligger innen gangavstand. Jordal Amfi og Valle Hovin ligger også nær boligen.
Dagligvarebutikker som Kiwi og Rema 1000 har lange åpningstider, og Tøyen ligger kun en kort spasertur unna og byr på et hyggelig nærsentrum med butikker, kafeer, restauranter, apotek og servicetilbud. Fyrstikktorget ved Helsfyr byr på kjøpesenter, apotek, restauranter og butikker.
Kollektivtilbudet er svært godt med buss, T-bane, tog og flybuss i nærheten. Ensjø T-banestasjon ligger kun 150–200 meter unna.
Husleie
Leien reguleres årlig etter konsumprisindeksen. Utleier bruker Husleie.no for trygg oppfølging av innbetalinger.
Inkludert i leien:
• Kommunale avgifter
• Renovasjon
• Grunnpakke for bredbånd
Ikke inkludert:
• Strøm (leietaker oppretter eget abonnement)
• Fjernvarme og varmtvann (betales etter forbruk)
Øvrige vilkår
• Depositum: 3 måneders leie (kr 55.500,- i Instabank)
• Røyking og dyrehold er ikke tillatt
• Utleier skifter luftfilter to ganger i året for et godt inneklima
Leieperiode og oppsigelse
• Leieforholdet varer fra 01.02.2026 til 31.01.2029
• Minimum botid: 1 år
• Gjensidig oppsigelsestid: 3 måneder
• Oppsigelsen gjelder fra første dag i påfølgende måned
Leiligheten er ledig fra 01.02.2026, men tidligere innflytting kan avtales – tidligst fra 18. januar 2026.
Fremleie
Ikke tillatt uten skriftlig godkjenning fra utleier.
Oppvarming
Sentralfyring med vannbåren gulvvarme i stue/kjøkken, entré og bad.
Parkering
Ingen fast parkeringsplass. Gateparkering etter kommunens regler.
Visning
Leiligheten er for tiden utleid, men det arrangeres fellesvisning:
• Søndag 14. desember 2025 kl. 14:00–15:00
Ta kontakt dersom tidspunktet ikke passer.
Interessert?
Send en melding med kort informasjon om deg/dere som ønsker å leie: jobb, økonomi, referanser og litt om hvem dere er.
Are you interested?
Send me a message with brief information about yourself and those who will live in the apartment. Include details about work, finances, references, and a short description of who you are.
Utleier vil forvalte leieforholdet på Husleie.no. For leietaker betyr dette i all hovedsak at husleien faktures og innkreves av Husleie.no
For partenes trygghet vil utleier benytte Husleie.no sin leiekontrakt. Begge parter signerer kontrakten med BankID.
Depositumet skal innbetales til depositumskonto i Instabank opprettet av utleier på Husleie.no
Utleier kan velge å kredittsjekke potensielle leietakere på Husleie.no. Det vil da bli stilt krav om inntekt og null betalingsanmerkninger.
Interessenter til boligen vil bli oppfordret til å opprette en gratis Leietaker-CV på Husleie.no. Dette gir deg som utleier mer informasjon om interessenten slik at prosessen med å velge ut leietaker blir raskere og enklere.
Med en gratis Leietaker-CV får du det lille forspranget du trenger for å lykkes på leiemarkedet.
Møt opp ved hovedinngangen og ring 913 66 633 for å bli sluppet inn.
Med en gratis Leietaker-CV får du det lille forspranget du trenger for å lykkes på leiemarkedet.