Din snarvei til drømmeboligen
Med en gratis Leietaker-CV får du det lille forspranget du trenger for å lykkes på leiemarkedet.

Inkluderer: Kommunale avgifter

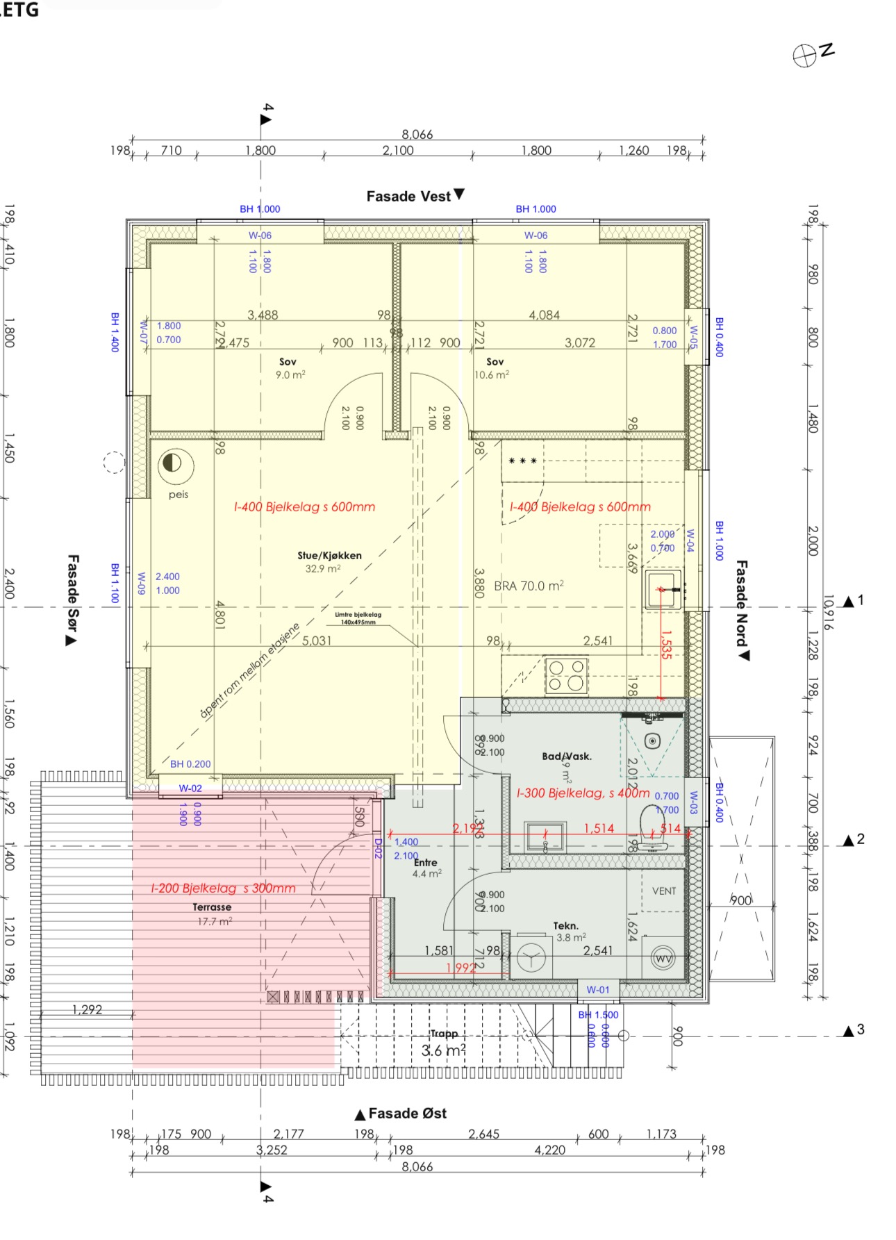
Flott og moderne leilighet til leie i nybygg. Leiligheten holder gjennomgående høy standard med stilrene materialvalg og gode løsninger.
Leiligheten har to romslige soverom, høyt tak som gir en luftig og åpen følelse, samt store vindusflater som slipper inn rikelig med naturlig lys. Det er utgang til en hyggelig terrasse med gode solforhold. Det medfølger to parkeringsplasser.
Med en gratis Leietaker-CV får du det lille forspranget du trenger for å lykkes på leiemarkedet.

Med en gratis Leietaker-CV får du det lille forspranget du trenger for å lykkes på leiemarkedet.