Vi tilbyr depositumsgaranti til kun 435 kr / mnd for denne leieboligen
- Erstatter behovet for en vanlig depositumskonto
- Fast lavt månedsbeløp
- Enkelt å opprette og avslutte




Inkluderer: Internet. Altiboks tv er mulig etter avtale.
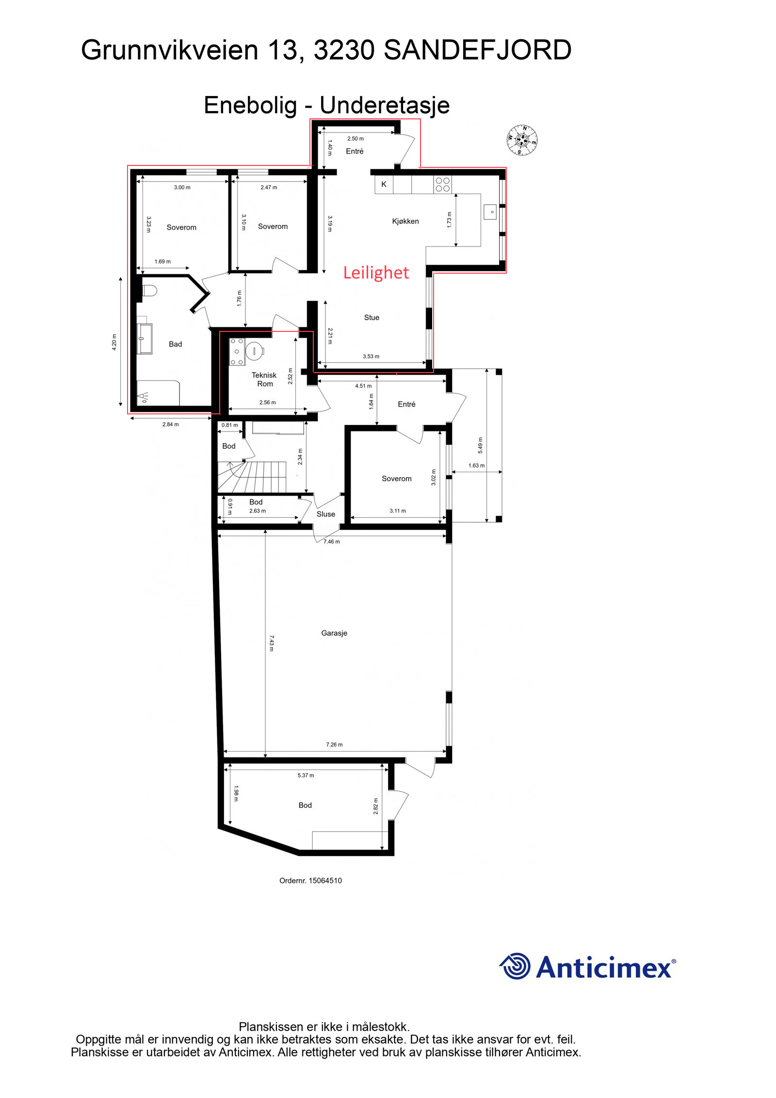
Lys og moderne sokkelleilighet på 67 m² leies ut fra 1. oktober 2025. Leiligheten ligger kun 50 meter fra havet og kyststien, i enden av en stille og rolig blindvei.
Leiligheten inneholder:
2 soverom
Stort bad med opplegg for vaskemaskin
Åpen stue- og kjøkkenløsning
Egen parkeringsplass
Kjøkkenet har slette fronter, integrert koketopp, stekeovn og oppvaskmaskin
Det er gulvvarme i alle rom.
Leiligheten leies ut umøblert. Det er per i dag ikke kjøleskap, men dette kan installeres av huseier etter avtale.
Det ene soverommet har tidligere blitt brukt som walkin-skap. Huseier kan fjærne hyllene fra dette dersom det er ønskelig.
Det er egen strømmåler og varmtvannsbereder tilkoblet leiligheten.
Brannvarslere er installert og tilkoblet huseiers Verisure-system.
Røyking og husdyr er ikke tillat.
Internett:
Husleien inkluderer tilgang til huseiers fiberbredbånd fra Altiboks via gjestenettverk. Leietaker kan også tegne eget abonnement hos Telenor via coax-kabel om ønskelig.
Utleier vil forvalte leieforholdet på Husleie.no. For leietaker betyr dette i all hovedsak at husleien faktures og innkreves av Husleie.no
For partenes trygghet vil utleier benytte Husleie.no sin leiekontrakt. Begge parter signerer kontrakten med BankID.
Depositumet skal innbetales til depositumskonto i Instabank opprettet av utleier på Husleie.no
Leietaker kan stille depositum i form av depositumsgaranti. Depositumsgaranti, også kjent som leiegaranti, er et alternativ til ordinært depositum ved leie av bolig. Du betaler kun en lav månedsum for å ha gyldig depositum.
Utleier kan velge å kredittsjekke potensielle leietakere på Husleie.no. Det vil da bli stilt krav om inntekt og null betalingsanmerkninger.
Interessenter til boligen vil bli oppfordret til å opprette en gratis Leietaker-CV på Husleie.no. Dette gir deg som utleier mer informasjon om interessenten slik at prosessen med å velge ut leietaker blir raskere og enklere.
Dersom døren ikke står åpen vennligst kontakt meg på 90523392
Med en gratis Leietaker-CV får du det lille forspranget du trenger for å lykkes på leiemarkedet.