Din snarvei til drømmeboligen
Med en gratis Leietaker-CV får du det lille forspranget du trenger for å lykkes på leiemarkedet.




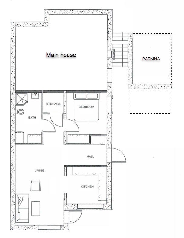
Lys og fin leilighet sentralt i Sandnes, tilbaketrukket i rolig blindvei. Lunden er et ærverdig område med store villaer og få minutters gange til sentrum, butikker, skoler, idrett, tog/buss og turområder.
Innhold:
- Kjøkken med hvitevarer (komfyr, oppvaskmaskin, kjøl/frys kombiskap).
- Stue med utgang til stenlagt platting.
- Romslig entre med garderobe.
- Bad med vaskemaskin.
- Soverom med garderobe.
- Praktisk innvendig bod.
- Parkering med elbillader.
Leiligheten har lyse vegger, slipt betonggulv (fliser på bad), vannbåren varme, balansert ventilasjon og lamper/lys i tak. Nettverkskontakter finnes i soverom og stue. Betongdekke gjør at det er lite lyd fra andre beboere. Leiligheten har eget gårdsrom som er adskilt fra hoveddel, med elbillader. Kort vei til lekeplass og fotballbane.
Internett, oppvarming (vannbåren varme) og varmt forbruksvann er inkludert i husleien. Strøm er ikke inkludert i leien, leietaker må opprette egen strømavtale.
Område utenfor leiligheten som har betongdekke kan disponeres, hage/gressplen kan ikke disponeres.
Dyrehold og røyking er ikke tillatt i leiligheten eller på eiendommen.
Leiligheten er ledig fra 01.06.2026, langtidsleie er foretrukket.
Visning etter avtale.
Utleier kan velge å kredittsjekke potensielle leietakere på Husleie.no. Det vil da bli stilt krav om inntekt og null betalingsanmerkninger.
Interessenter til boligen vil bli oppfordret til å opprette en gratis Leietaker-CV på Husleie.no. Dette gir deg som utleier mer informasjon om interessenten slik at prosessen med å velge ut leietaker blir raskere og enklere.
Med en gratis Leietaker-CV får du det lille forspranget du trenger for å lykkes på leiemarkedet.
Med en gratis Leietaker-CV får du det lille forspranget du trenger for å lykkes på leiemarkedet.