Vi tilbyr depositumsgaranti til kun 645 kr / mnd for denne leieboligen
- Erstatter behovet for en vanlig depositumskonto
- Fast lavt månedsbeløp
- Enkelt å opprette og avslutte




Inkluderer: Basispakke kabel-tv og bredbånd, vann og avløp
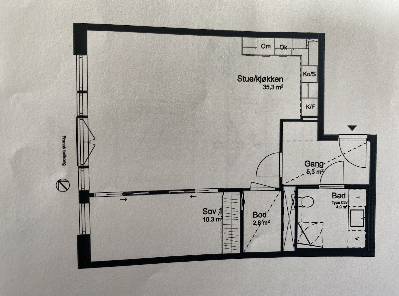
Lys og moderne 2-roms leilighet på Majorstuen – Middelthuns gate 17D
4. etasje
Ledig fra 03.10.2025
Leiepris: 21 500 kr per måned
Om leiligheten:
Ny og moderne leilighet på 59 kvm (BRA 62 kvm) beliggende i attraktive Middelthunet på Majorstuen. Leiligheten leies ut umøblert og ligger i byggets 4. etasje med heis.
Leiligheten har god planløsning og tilgang til en rekke fasiliteter:
-Systemparkeringsplass (garasje) inkludert
-Felles takterrasser med fantastisk utsikt, gode solforhold, utekjøkken, treningsapparater, utedusj og flotte loungeområder
- Felles sykkelparkering innendørs
- Sportsbod
Beliggenhet
Leiligheten har en svært sentral beliggenhet på Majorstuen, rett ved Colosseum og Frognerparken/Vigelandsparken.
I nærområdet finner du alt du trenger:
Dagligvare: Meny, Jacobs m.m.
Colosseum Senter: Apotek, vinmonopol, butikker og serveringssteder
Trening: SATS Colosseum og EVO kun få meter unna
Kollektivtransport er lett tilgjengelig med t-bane, trikk og buss i umiddelbar nærhet.
Inkludert i husleien
- Systemparkering i garasje
- Basispakke kabel-TV og bredbånd
- Vann og avløp
Praktisk info
- Umøblert
- 4 etasje
- Visning etter avtale (kontakt 90139087)
Utleier vil forvalte leieforholdet på Husleie.no. For leietaker betyr dette i all hovedsak at husleien faktures og innkreves av Husleie.no
For partenes trygghet vil utleier benytte Husleie.no sin leiekontrakt. Begge parter signerer kontrakten med BankID.
Depositumet skal innbetales til depositumskonto i Instabank opprettet av utleier på Husleie.no
Leietaker kan stille depositum i form av depositumsgaranti. Depositumsgaranti, også kjent som leiegaranti, er et alternativ til ordinært depositum ved leie av bolig. Du betaler kun en lav månedsum for å ha gyldig depositum.
Utleier kan velge å kredittsjekke potensielle leietakere på Husleie.no. Det vil da bli stilt krav om inntekt og null betalingsanmerkninger.
Med en gratis Leietaker-CV får du det lille forspranget du trenger for å lykkes på leiemarkedet.