Din snarvei til drømmeboligen
Med en gratis Leietaker-CV får du det lille forspranget du trenger for å lykkes på leiemarkedet.




Inkluderer: Inkluderer internett.

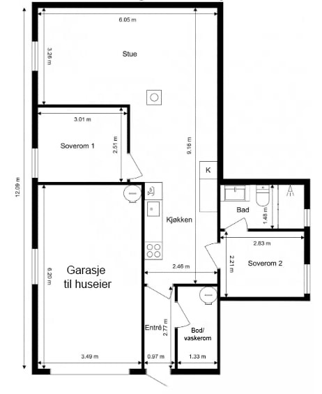
Velholdt og lys 3-roms leilighet (77 kvm) bestående av to soverom, stue, kjøkken, bad, gang og eget vaskerom. Leiligheten leies ut umøblert og har eget uteområde med liten platting- perfekt for morgenkaffen. Parkeringsplass til én bil følger med. Langtidsleie ønskes😊
🏡 Om boligen:
- Koselig, romslig planløsning med gode muligheter for innredning.
- Rolig beliggenhet med kort avstand til skog og idylliske turområder.
- Nærhet til butikker, barnehage, skole, bussforbindelser, treningssenter og Arendal sentrum.
- Det er også plass til en koselig spisestue, som ikke vises på bildene.
Krav og betingelser:
- Månedsleie: kr 12.000.
- Depositum: kr 24.000.
- Internett er inkludert.
- Strøm er ikke inkludert, så du kan velge hvilken avtale som passer best for deg.
- Ønskes leid til en rolig, moden person med sikker inntekt.
- Røyking og festing er ikke tillatt.
- Dyr kan vurderes ut fra person og type dyr.
Interessert eller kjenner noen som trenger et sted å leie? Ta kontakt for visning eller mer informasjon.😊
Utleier vil forvalte leieforholdet på Husleie.no. For leietaker betyr dette i all hovedsak at husleien faktures og innkreves av Husleie.no
For partenes trygghet vil utleier benytte Husleie.no sin leiekontrakt. Begge parter signerer kontrakten med BankID.
Depositumet skal innbetales til depositumskonto i Instabank opprettet av utleier på Husleie.no
Utleier kan velge å kredittsjekke potensielle leietakere på Husleie.no. Det vil da bli stilt krav om inntekt og null betalingsanmerkninger.
Interessenter til boligen vil bli oppfordret til å opprette en gratis Leietaker-CV på Husleie.no. Dette gir deg som utleier mer informasjon om interessenten slik at prosessen med å velge ut leietaker blir raskere og enklere.
Med en gratis Leietaker-CV får du det lille forspranget du trenger for å lykkes på leiemarkedet.

Med en gratis Leietaker-CV får du det lille forspranget du trenger for å lykkes på leiemarkedet.