Vi tilbyr depositumsgaranti til kun 300 kr / mnd for denne leieboligen
- Erstatter behovet for en vanlig depositumskonto
- Fast lavt månedsbeløp
- Enkelt å opprette og avslutte




Inkluderer: Hvitevarer, strøm, bredbånd
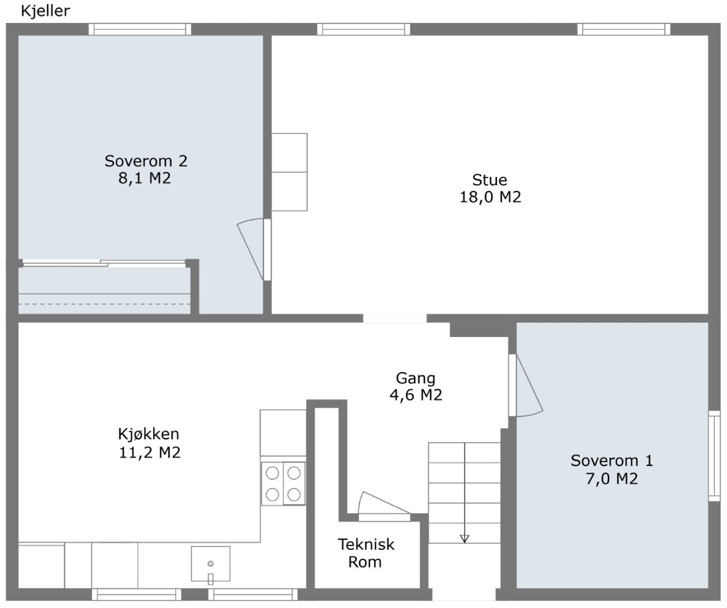
Leilighet med 2 soverom i rolig strøk rett ved marka midt mellom Kyvannet og Lianvannet i Trondheim. Leiligheten er på 69 kvm. Bredbånd, strøm, parkeringsplass og hvitevarer og skyvedørsgarderober er inkludert. Gulvvarme i gang, bad, stue og kjøkken. Eget sikringsskap med strømmåler.
Depositumet, som må være på plass innen overtakelsen av boligen, er kr 30 000,00.
Vi ønsker i utgangspunktet et kortere leieforhold ifm at vi ønsker å pusse opp på sommeren (ikke planlagt nøyaktig tidspunkt enda).
Umiddelbar nærhet til trikkeholdeplass. Trikken har avgang hvert 15. minutt på dagtid og nattrute fredag og lørdag til 03:15. Biloppstillingsplass.
Utleier vil forvalte leieforholdet på Husleie.no. For leietaker betyr dette i all hovedsak at husleien faktures og innkreves av Husleie.no
For partenes trygghet vil utleier benytte Husleie.no sin leiekontrakt. Begge parter signerer kontrakten med BankID.
Depositumet skal innbetales til depositumskonto i Instabank opprettet av utleier på Husleie.no
Leietaker kan stille depositum i form av depositumsgaranti. Depositumsgaranti, også kjent som leiegaranti, er et alternativ til ordinært depositum ved leie av bolig. Du betaler kun en lav månedsum for å ha gyldig depositum.
Utleier kan velge å kredittsjekke potensielle leietakere på Husleie.no. Det vil da bli stilt krav om inntekt og null betalingsanmerkninger.
Interessenter til boligen vil bli oppfordret til å opprette en gratis Leietaker-CV på Husleie.no. Dette gir deg som utleier mer informasjon om interessenten slik at prosessen med å velge ut leietaker blir raskere og enklere.
Med en gratis Leietaker-CV får du det lille forspranget du trenger for å lykkes på leiemarkedet.