Din snarvei til drømmeboligen
Med en gratis Leietaker-CV får du det lille forspranget du trenger for å lykkes på leiemarkedet.




Inkluderer: Internett, vann
Heisann!
Det er to ledige rom i et kollektiv på fire personer på Nardo fra januar 2026.
Kort info:
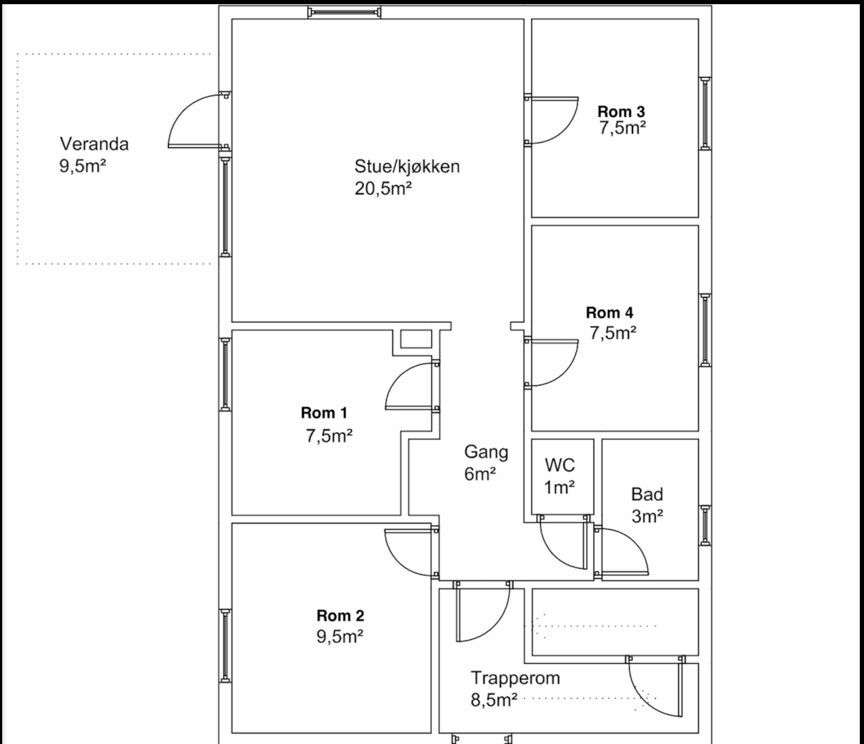
- Rom 3 og rom 4 blir ledige. Begge er på 7.5 m^2, vennligst se plantegning
- Rommene er møblert med seng, klesskap, pult og stol
- Leiepris: 6250 per rom i måneden, ekskludert strøm
- Strøm har vært i snitt 200 kr per måned i løpet av skoleåret 2024/2025
- Ledig fra 5.januar 2026
- Kontrakten kan sies opp før 1. april 2026 med utflytning 21.juli 2026. Det er også mulig å forlenge kontrakten hvis ønsket.
- To gutter bor her fra før, men det er mulig han ene skal på utveksling og flytter også ut.
- 15 min gange til Gløshaugen
English:
Hi!
There are two available rooms in a four-person shared apartment in Nardo from January 2026.
Quick info:
- Room 3 and Room 4 will be available. Both are 7.5 m² — please see the floor plan.
- The rooms are furnished with a bed, wardrobe, desk, and chair.
- Rent: 6,250 NOK per room per month, excluding electricity.
- Electricity has averaged around 200 NOK per month during the 2024/2025 school year.
- Available from January 5th, 2026.
- The contract can be terminated before April 1, 2026 with move-out July 21, 2026. It is also prolong the contract if desired.
- Two guys already live here, but it’s possible that one of them will go on exchange and move out as well.
- About 15 minutes’ walk to Gløshaugen.
Med en gratis Leietaker-CV får du det lille forspranget du trenger for å lykkes på leiemarkedet.
Med en gratis Leietaker-CV får du det lille forspranget du trenger for å lykkes på leiemarkedet.